Encuentro EscaLONADO
Edificio de Vivienda Multifamiliar – Antezana 376
2023 – Proyecto académico (UADE)
• 470m² de Viviendas – 150m² Comerciales
Conjunto de viviendas de tres niveles organizado en torno a un vacío central que promueve la interacción entre vecinos.
Pasarelas y una escalera escultórica articulan el recorrido interior, generando visuales tanto hacia la plaza Benito Nazar como hacia el propio conjunto.
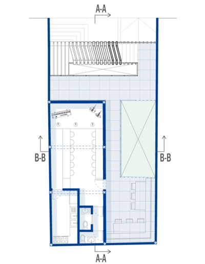
El café en la terraza extiende el proyecto hacia el barrio, convirtiéndolo en un punto de encuentro abierto a la comunidad.
Terraza Comercial
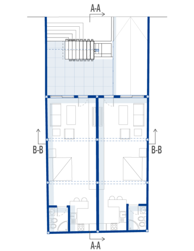
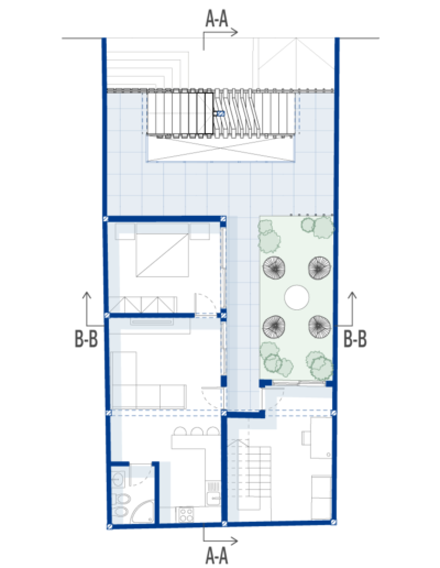
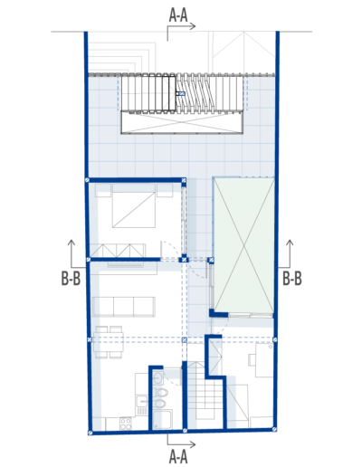
La morfología surge de la sustracción de un prisma ortogonal dentro de un volumen principal, generando un vacío central que organiza la circulación, la iluminación y las visuales. Este patio actúa como articulador espacial y social del conjunto.
Un volumen transversal en el frente aloja el bloque de escaleras, reforzando la relación con el espacio público. La escalera principal, construida en madera y estructurada mediante una viga central, se compone de anillos de distintos espesores que conforman un sistema helicoidal continuo. Esta pieza no solo resuelve la circulación vertical, sino que se convierte en el elemento arquitectónico protagonista del proyecto.
Las pasarelas perimetrales y el café en la terraza consolidan un recorrido que integra vivienda y comunidad, extendiendo la experiencia hacia la ciudad.
Vista Antezana
Corte A-A
Corte B-B
Primer piso – Residencial





